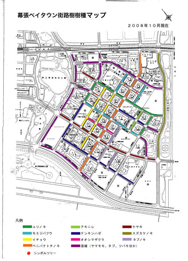
街路樹の種類 ベイタウンの街路樹は通り別にいろんな種類の木が植わっています。
春は大島桜の花、初夏は紅花トチノキが大きなピンクの花をつけ、秋になればナンキンハゼやイチョウ、モミジバフウの紅葉が楽しめます。
家の前の木は何という木か、ご存知でしたか?
アキニレ
イチョウ
エノキ
オオシマサクラ
クスノキ
ケヤキ
サルスベリ
スズカケノキ
タブノキ
ナンキンハゼ
ベニバナトチノキ
モミジバフー
  ヤマモモ
  ユリノキ 
    
   

Copyright (C) 2004-2008 Green Thumb All right reserved